House Rossi


INFO

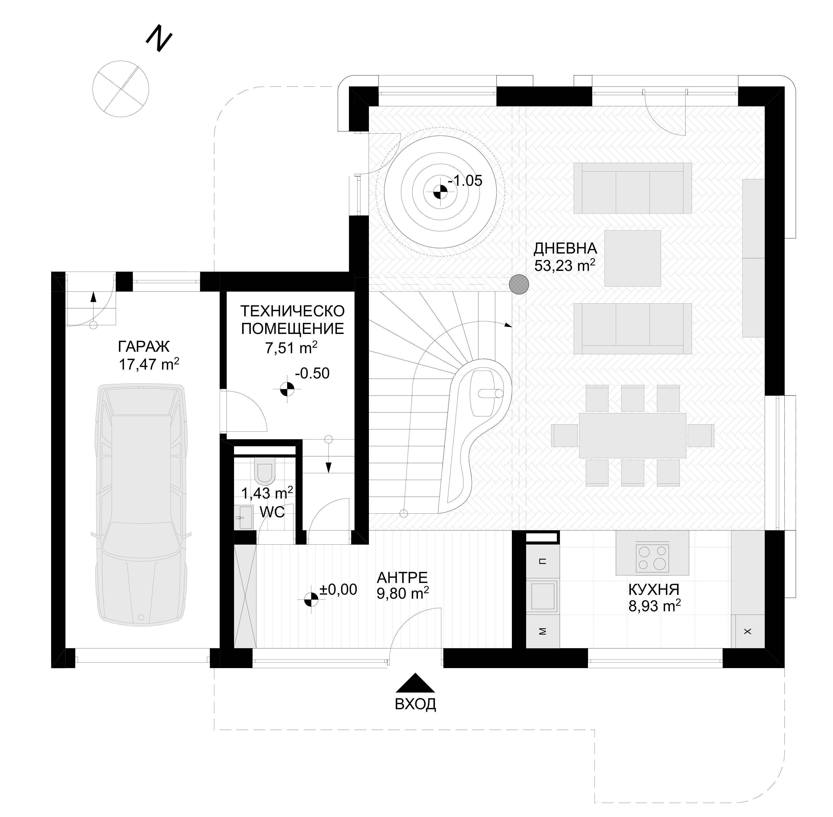
Име:      House Rossi

Локация:  с.Дрен

Тип:      Еднофамилна вила

Площ:     343кв.м

Клиент:   Частен

Година:   2018

© 2019 Mezame studio. All Rights Reserved