WOOH VEGA


INFO

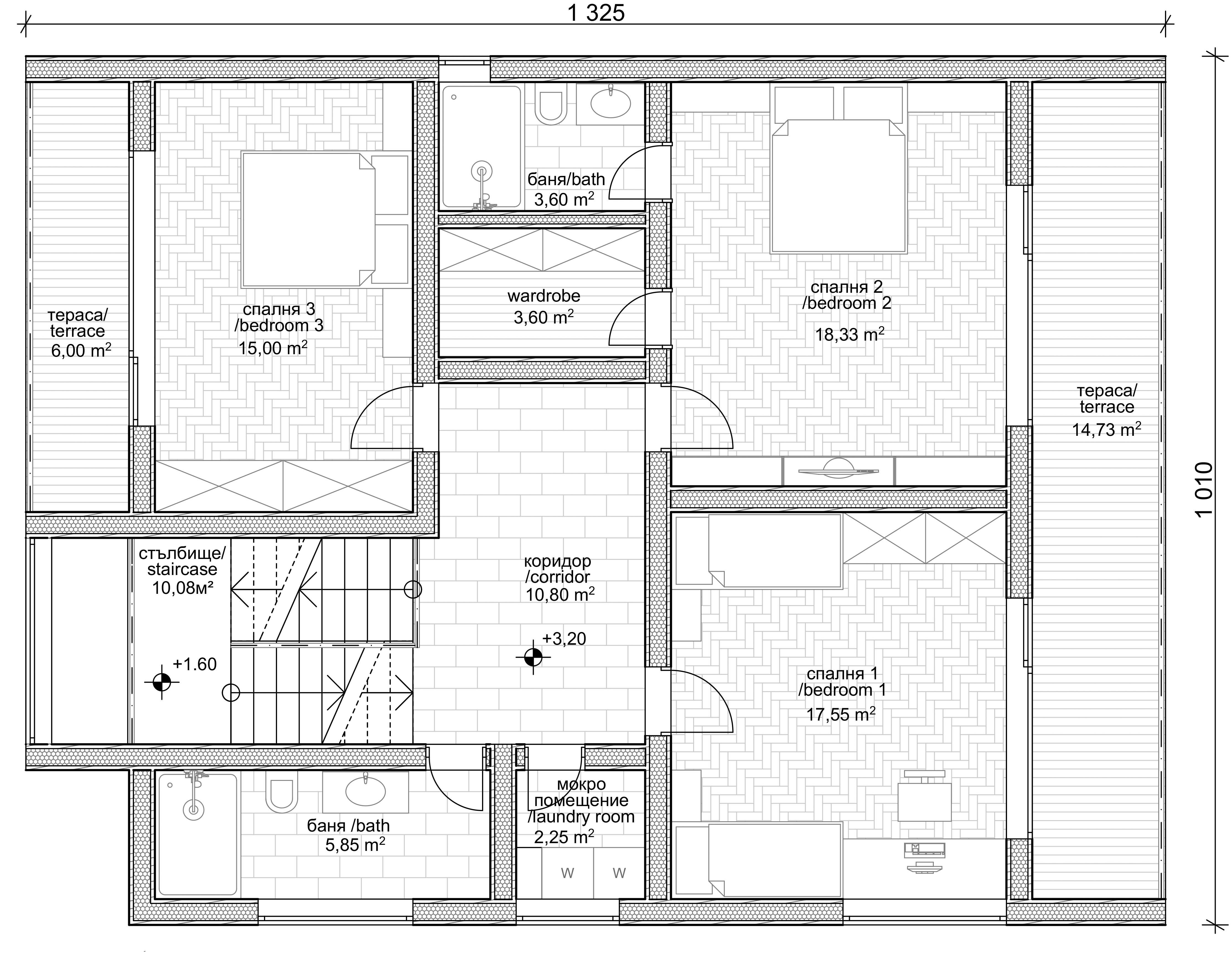
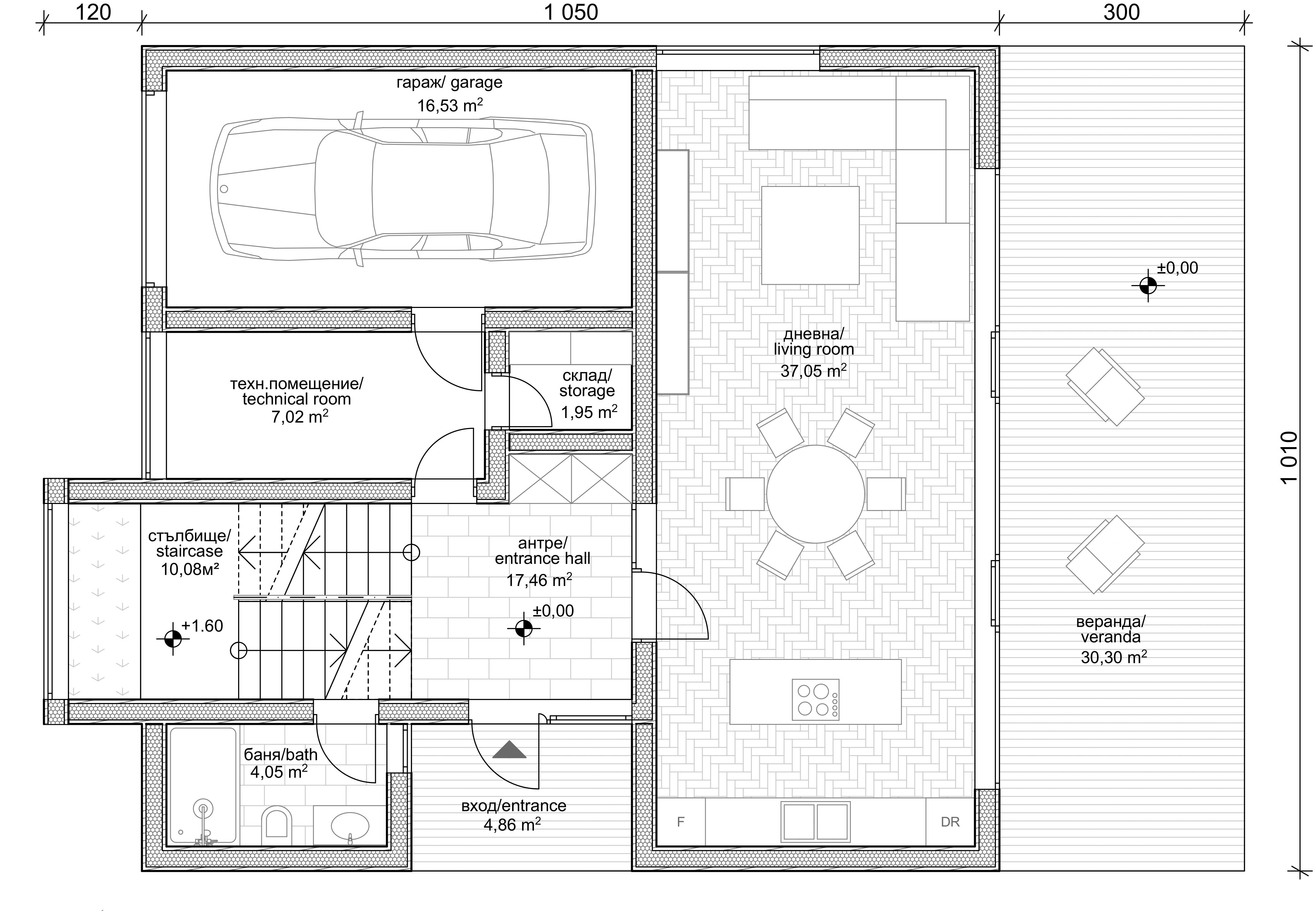
Тип:      Сглобяема дървена къща

Площ:     235 кв.м

Клиент:   Частен

Година:   2018

© 2019 Mezame studio. All Rights Reserved